Brandschutz
Brandschutztüren
Brandschutz gehört zu den anspruchsvollsten Herausforderungen im Bereich der Sicherheitstechnik für Gebäude.
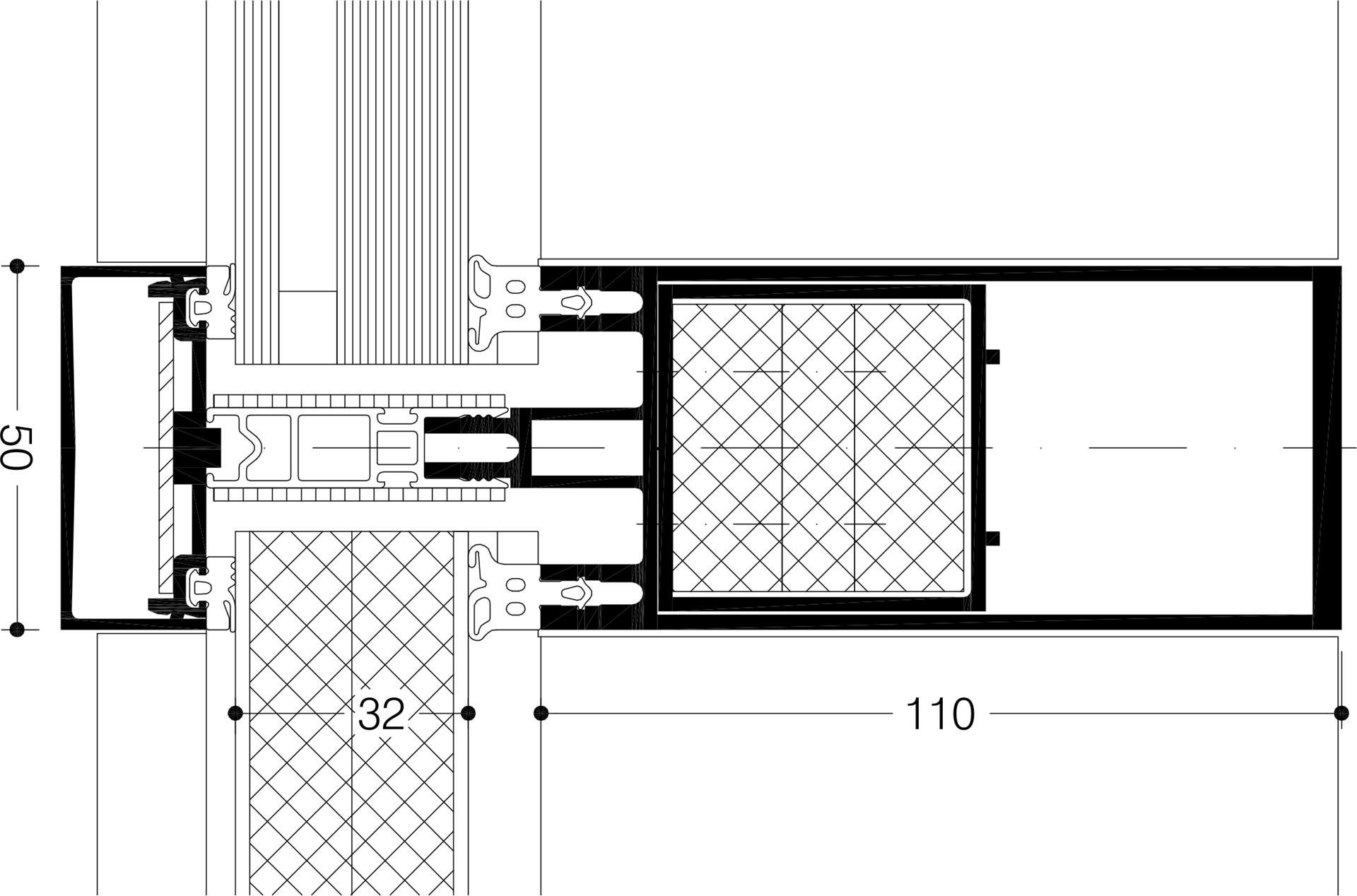
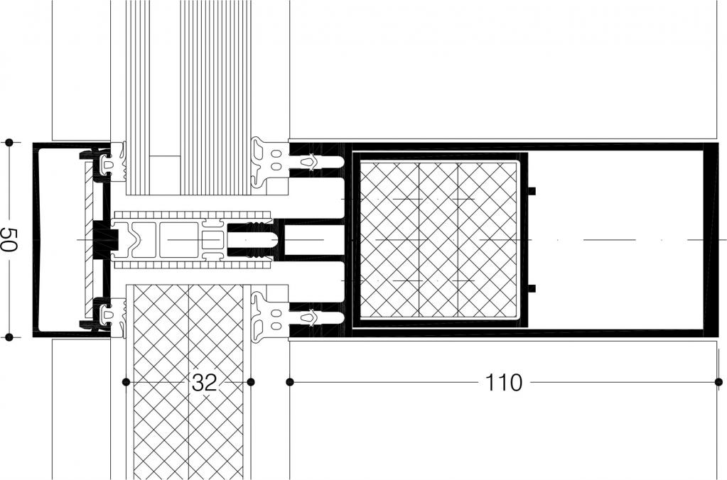
Die Brandschutztür WICSTYLE 77FP bietet für öffentliche Gebäude, Krankenhäuser, Hotels, Gesundheitseinrichtungen, Schulen, Veranstaltungs- und Freizeiteinrichtungen passende Lösungen in der geforderte Flammhemm- und Brandschutzklasse. Dies gilt für Neubauten ebenso wie für Modernisierungsprojekte.
Brandschutzfassade
Ob Treppenhäuser, Anbauten, Atrien oder Dachverglasungen - mit WICTEC FP können Sie alle denkbaren Fassadenvarianten und architektonischen Ideen auf die notwendigen Brandschutzanforderungen hin abstimmen und entsprechend ausführen.
WICTEC FP ist in vollem Umfang kompatibel mit den Standardfassaden WICTEC 50 und WICTEC 60. So kann Brandschutz zum harmonischen Bestandteil jeder individuellen Fassadenlösung werden.